I joined the forum a few days ago as I was ploughing my way through the "Thing you Forget" sticky in preparation for our pre-start meeting. So I thought I would introduce myself and start a thread of our build.
We signed up with RedInk back in June and we are building a version of The Ashby out in Lower Chittering near Perth, WA. We have made some alterations to the base design and these plans are currently at the drafting stage. So DH and I are spending most of our time considering all things pre-start at the moment. I am already surprised at how quickly you become obesessed with things like brick colour!!
Hopefully this will be our forever house, so whilst we're hopefully not going to over spend too much, we want to future proof it as much as possible.
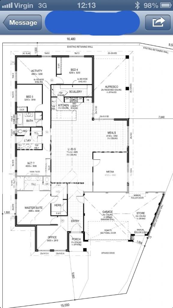
Anyway with a bit of luck our floorplan should be showing below and any comments are welcome (although I think we have missed the opportunity to do anything drastic structurally!)
Base Plan
<a href="http://s24.photobucket.com/user/nhsouth/media/TheAshby_zps9e03ba9b.jpg.html" target="_blank"><img src="http://i24.photobucket.com/albums/c32/nhsouth/TheAshby_zps9e03ba9b.jpg" border="0" alt=" photo TheAshby_zps9e03ba9b.jpg"/></a>
Amended Plan
<a href="http://s24.photobucket.com/user/nhsouth/media/AshbyAmended_zpsec693835.jpg.html" target="_blank"><img src="http://i24.photobucket.com/albums/c32/nhsouth/AshbyAmended_zpsec693835.jpg" border="0" alt=" photo AshbyAmended_zpsec693835.jpg"/></a>